時間:2018-07-25 10:35
核心提示: 商鋪分割對項目銷售、招商及后期經營影響深遠。本文從商鋪分割步驟與要求、難題破解兩大方面進行深度剖析,為購物中心提高經營收益提供方法指導。
1、鋪位分割步驟
鋪位劃分的前期工作

鋪位劃分順序

2、不同商業業態開間進深要求
餐飲對開間進深的要求

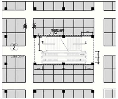
以某商業廣場的酒吧街為例

服飾對開間進深的要求

以某商業步行街服裝業態的商鋪為例:商鋪一

以某商業步行街服裝業態的商鋪為例:商鋪二

美容美發對開間進深的要求

二、商鋪分割難題與破解方法
1、商鋪分割常見難題

難題1:鋪面分割
空中街市的回廊,一戶一廁所一管網系統一樓梯等,造成商鋪開發成本增加使用率減少;
沿港路異形設計,導致部分鋪面沒有臨街展示面,缺乏商業功能價值;
鋪面進深過長,導致銷售總價過大,租金基數高,影響招商(專題閱讀)和銷售難題。

難題2:輔助功能區
輔助功能區太多,白白浪費了許多可銷售面積。主要是樓梯太多、廁所太多、空閑場地太多。這些輔助功能區直接影響整個項目的租金、物業管理費成本,也增加公共能耗和維護成本三多不除,公攤不減。

難題3:通道分割
許多商業項目的通道和道路分割不盡合理,一方面過道沒有針對人流的導向進行設計,設計了大量過道、樓梯和回廊;另一方面過道設計不規則,拐角、分叉太多,不符合人的行走習慣,對空間造成浪費。

難題4:公攤比例過高
在無法大面積招商的情況下,要降低公攤比例唯一的辦法就是提高使用率,包括縮窄過道、取消部分樓梯、取消休息場所、銷售電動扶梯下部的空間等,將所有的可出售面積均作為商鋪招租和出售。
目前部分商業項目的公攤比例達到了50%,根據以上進行的分析,可以看出如果以上的分割建議全部實行的話,最大可將公攤面積減少15%-25%,將公攤比例從50%壓縮到 25%左右。
2、商鋪分割難題破解
(1)合理設計商業場所平面布局
平面布局設計是確定通道形態,確定鋪位的布局和面積大小,最大限度地為每個鋪位帶來通行人流,提供更多的生意機會。
方法1:以柱點為自然分界點,便于縱向和橫向分割

方法2:以電梯的口為中心進行排列通道,便于人流分散

方法2:以電梯的口為中心進行排列通道,便于人流分散

方法3:縱橫通道交叉空間太小時盡可能交叉
在兩條縱橫通道交叉時,如果空間太小則盡可能交叉,這樣對縱橫道路視野有益。

方法4:縱橫通道交叉空間太大則采取環形設計
在兩條縱橫通道交叉時,如空間太大,則可考慮采用環形或敞開式,使分割與統一標準鋪位面積相差不大。

方法5:邊線以直線為主
對于邊線,盡可能以直線為主,要兩邊同時有攤位,忌諱一側有,一側無。

方法6:變現不規則盡可能拉直處理
對于邊線中有不規則的,則盡可能拉直處理,雖然會使攤位面積不均勻,但會使道路齊整,便于人流貫通。

方法7:邊角區域不規則可以考慮適當彎曲
如遇邊角區域不規則,部分區域面積過大,則可以考慮適當彎曲,使之面積差不要過大。

方法8:衛生間和消防梯處,道路邊線不設攤位
在衛生間和消防梯處,道路邊線不要有攤位,邊線應緊貼衛生間門面,如距離太長,則可考慮放置柜臺,寬度0.5米,墻面做貨架處理。

方法9:多層面注意主通道設計
主通道與輔道有差距,主通道應在2.4米以上,若在電梯口的主通道要有3米左右的駐留空間。在電梯的上下口處,就要有直角交錯道路,使之為主要的縱橫線或是形成主通道。

方法10:弧形與環形設計有不同的運用
在正方形樓面積中,多采用環形設計。在交錯道路的平面中,有間距大的多采用弧形或環形設計。

方法11:電梯口的拐角處可用弧形設計
在電梯口,服務臺中或是拐角處,可用弧形設計。越不規則的地方,弧形設計應用越廣泛。

方法12:不可生硬搬用棋盤式
在棋盤式隔斷中,弧形組合在一些拐角處應用效果尤其明顯,所以不可生硬搬用棋盤式。

方法13:電梯口要設有主要通道

方法14:單層小面積區域,考慮敞開式與隔斷式結合
單層面積小的區域,可以考慮敞開式與隔斷式結合,在邊線用隔斷,中間用敞開式。攤位的敞開可用地面的色彩和燈光作區域劃分;柜臺的敞開則可采用弧形的設計。在敞開式中,如果業態是小百貨或通訊飾品類,可以設置全敞開式,許多商場就是采用敞開式與隔斷式相組合的方式。
(2)強化鋪位的功能設計

方法1:主通道輔通道根據人流量進行設計
功能設計中為了高效實現人流、物流等流通的需要,在通道設計中要分主通道與輔通道,主通道為2.4米、2.8米、3米、3.2米或更大;輔通道則為2.2米、2米、1.8米、1.5米,具體區域通道的寬度應根據人流量來設計。
方法2:大小不僅應和經營業態相吻合
大小不僅應和經營業態相吻合,也應和各地區的消費習慣相吻合,如服裝攤位一般設計為6-25平方米即可,36平方米的就為大商鋪。門最好是玻璃門,單門或兩扇門都可以,盡可能以長方形為好,一般黃金矩形商鋪的使用率最高,不規則的邊角在商鋪使用中可做服務業態或藝術處理(如形象廣告、水吧等)。
方法3:墻面使用材料依據經營的產品和市場檔次而定
隔斷墻的設計有很多種,比較方便的有以方鋼為龍骨或輕鋼龍骨,墻面用防火板或彩鋼板、石膏板、槽板材料等。總之墻面的使用要以具體經營的產品和市場檔次而定,門面的材料則可用布卷簾或玻璃門。30平方米以下的商鋪玻璃門的開門應開在一邊,而不是在正中央。
免責聲明:轉載稿件和圖片作品,系本站轉載自其他媒體,轉載目的在于信息傳遞,并不代表本站贊同其觀點和對其真實性負責。